Na prodej moderní rodinný dům ve fázi uzavřené hrubé stavby v žádané lokalitě Zlín - Prštné

Popis nemovitosti

Hledáte moderní, prostorný a energeticky úsporný dům v atraktivní lokalitě?
Exkluzivně nabízíme ke koupi rodinný dům 5+kk ve Zlíně – Prštném, který je aktuálně ve fázi uzavřené hrubé stavby. Ideální příležitost pro ty, kteří chtějí dotvořit svůj nový domov podle vlastních představ.

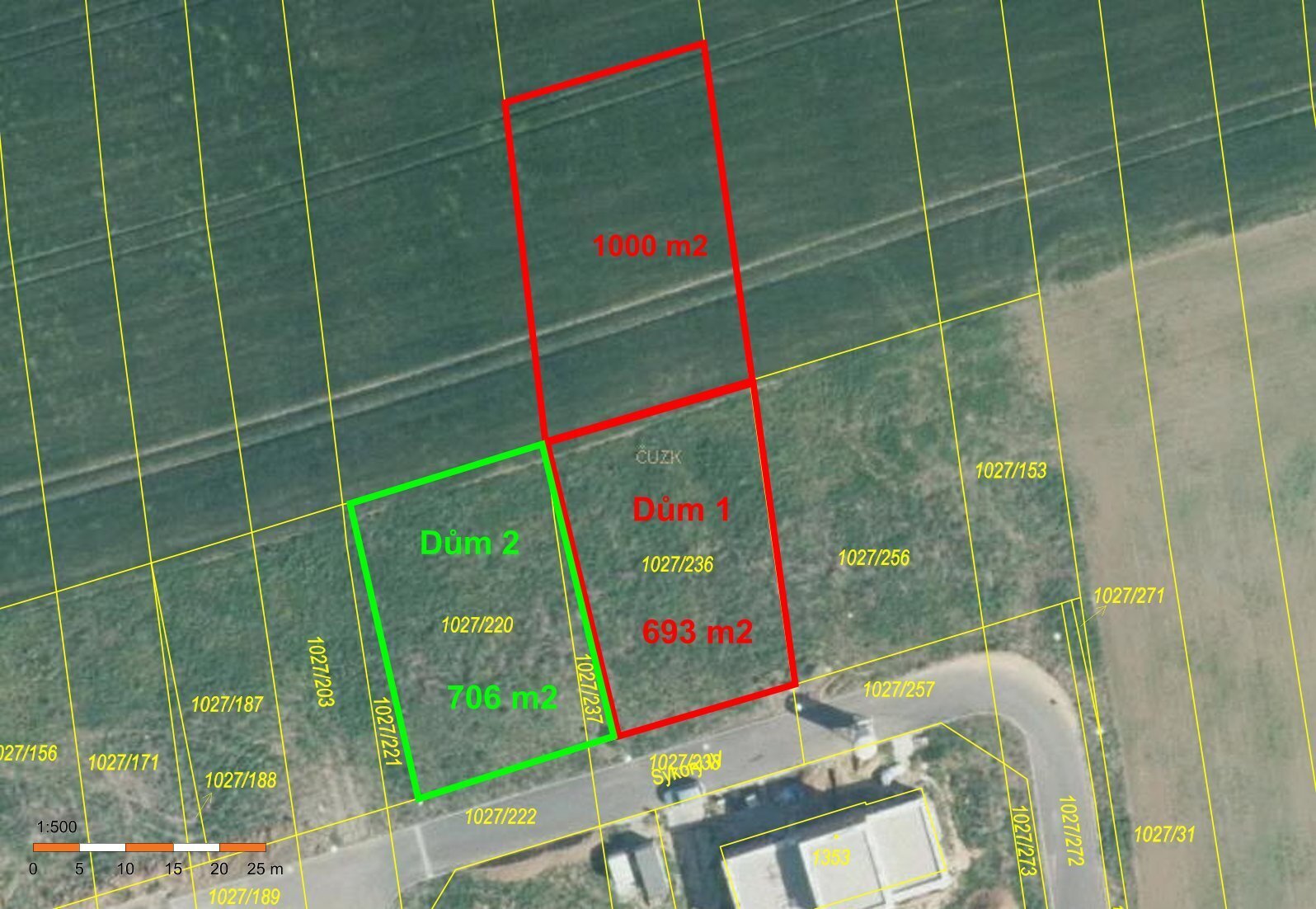
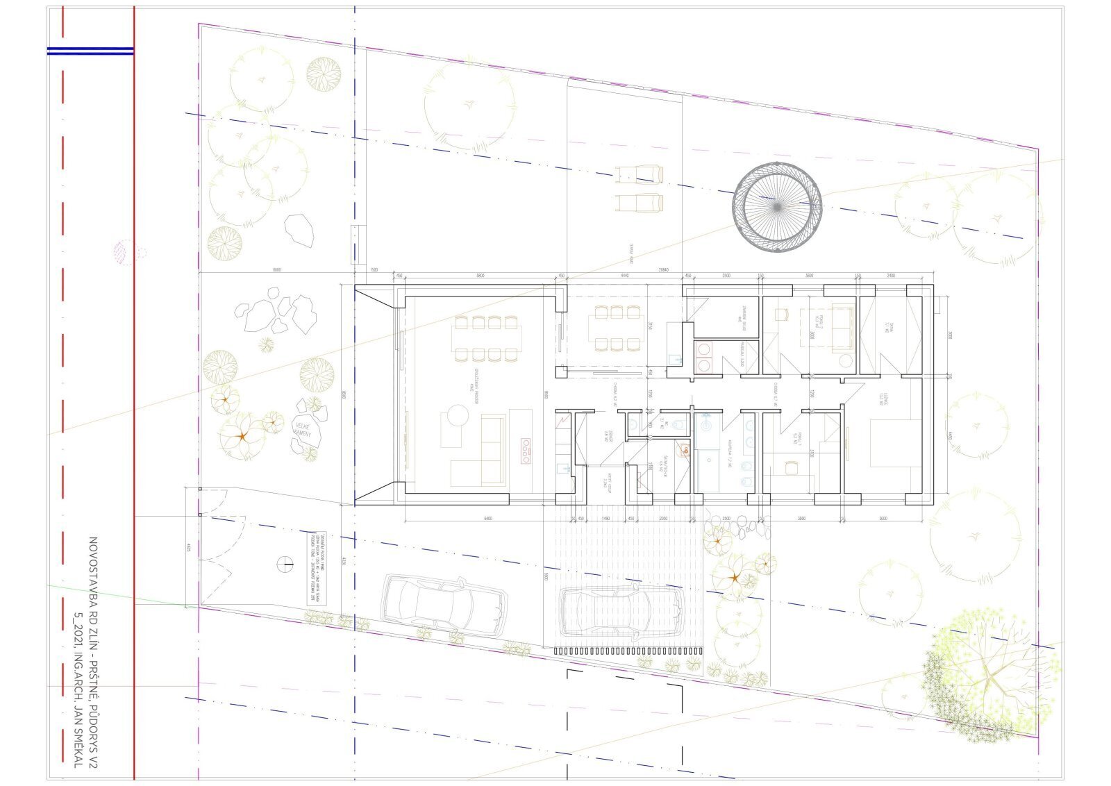
Dům stojí na rovinatém pozemku o rozloze 706 m² (32,4 m délka × 22,5 m šířka) a nabízí 198 m² užitné plochy, dvě terasy a kryté parkovací stání.

Dispozice:
- Prostorná vstupní chodba se šatnou – praktické úložné řešení hned u vchodu.
- Obývací pokoj s kuchyňským koutem a jídelnou (45,64 m²) – jižní orientace, přímý vstup na dvě terasy:
- jižní terasa: 10,79 m²
- západní terasa: 55,86 m², částečně krytá, se vstupem do skladu
- Ložnice (15 m²) s vlastní šatnou (8,7 m²).
- Dva neprůchozí pokoje (10,32 m² a 12,15 m²).
- Koupelna s WC a bidetem.
- Samostatné WC.
- Technická místnost.
- Sklad přístupný ze zahrady – ideální pro zahradní nářadí nebo sezónní vybavení.

Technické parametry:
- Hliníková okna s trojsklem, příprava na venkovní žaluzie.
- Tepelné čerpadlo a solární panely – úsporné a ekologické řešení.
- Projekt v energetické třídě B.
- Stavební povolení a projektová dokumentace jsou součástí nabídky.

Stavba a možnosti dokončení:
- Dům je ve fázi uzavřené hrubé stavby – připraven k dokončení podle vašich preferencí.
- Můžete si zvolit standardy interiéru, typ podlah, obklady i technologické vybavení.
- Dokončení na klíč lze zajistit dle dohody.

Lokalita:
Zlín – Prštné je oblíbená a rychle se rozvíjející městská část s vynikající dopravní dostupností do centra.
V blízkosti domu veškerá občanská vybavenost, najdete zde školu, školku, obchody, nákupní centrum, dětské hřiště, MHD a cyklostezku.
Lokalita nabízí klidné rodinné bydlení s kombinací městského komfortu a přírody na dosah.

Tento dům představuje skvělou příležitost pro rodinu, která hledá moderní bydlení v klidné části Zlína, ale i investici s velkým potenciálem do budoucna.

Zaujala vás tato nabídka? Kontaktujte mě pro více informací nebo osobní prohlídku.
Ráda se s vámi potkám, Alena Hlavinková.






Cena za nemovitosti

12 200 000 Kč

Kontaktní formulář


tel.: +420 731 618 472 alena.hlavinkova@email.cz

731 618 472